Pierre de Hauteville, bois & patine du temps

À l’abri de l’affluence lyonnaise, un ancien restaurant oublié devient un lieu de création. L’agence s’installe là, à rez-de-chaussée, en vitrine sur le quartier pour animer, pour faire ville. Créer un seul et grand espace traversant, étirer l’espace, ne plus percevoir la limite entre dedans et dehors… pour travailler au calme, autour d’une table massive et nue, sculptée dans le même peuplier que la charpente de la toiture. Tout s’organise autour d’elle – travail, échanges, lumière.
Tout participe à cela : fluidité de la lumière, continuité du mur existant en mâchefer du dedans jusqu’au fond du jardin, grands blocs de verre non recoupés, mobilier xxl.
Le lieu a été épuré, les doublages ôtés, les ouvertures recréées. Une extension, petite mais dense, vient relier les deux jardins. Au cœur, un patio ; au fond, un mur de lierre.
Une pierre locale, épaisse et veinée, suspend la baie comme dans un cadre flottant. La structure se tait pour mieux révéler l’impression d’équilibre, de calme, d’ébullition inventive.
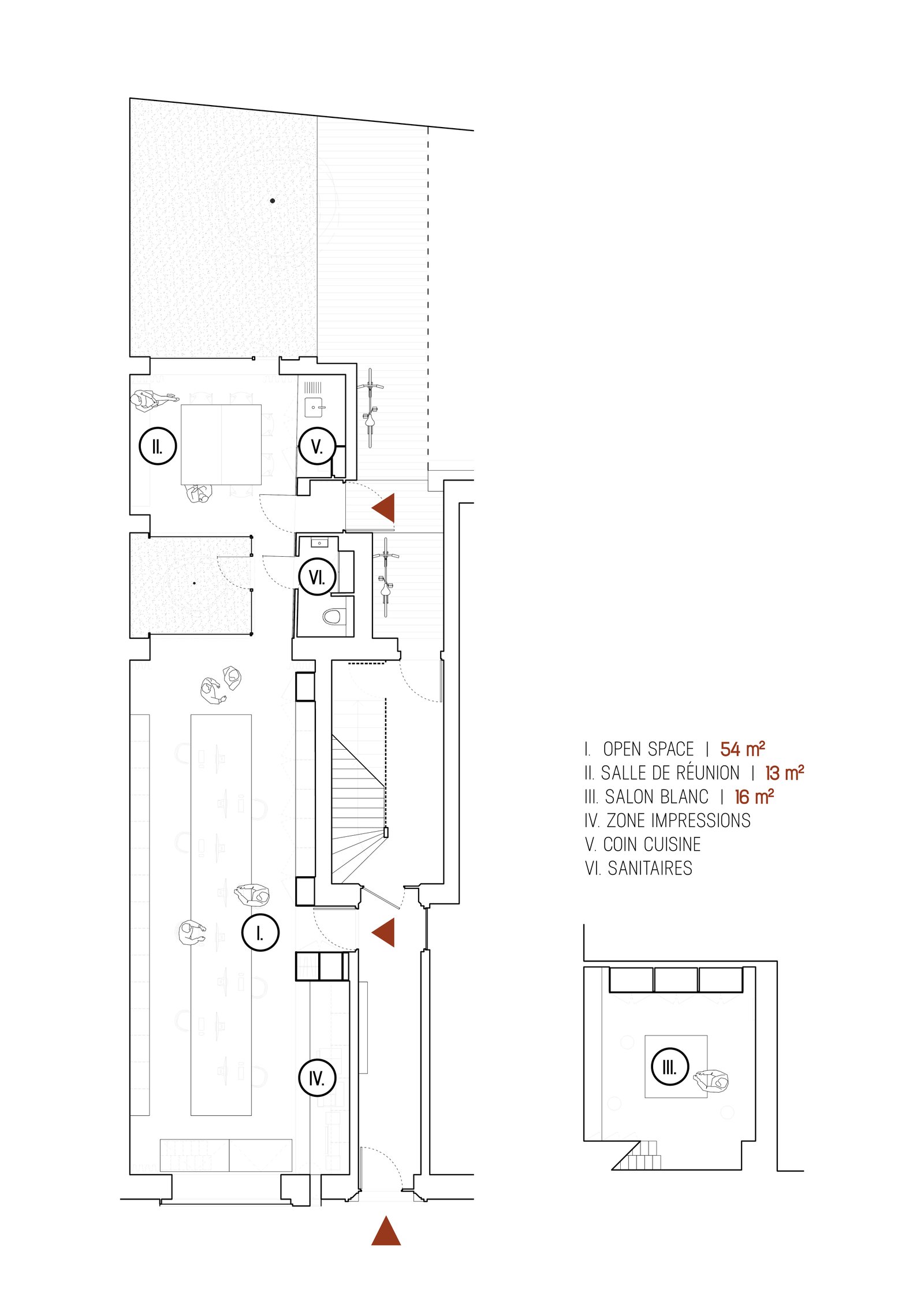
Le bois, composant l’ensemble de l’aménagement, glisse sur les parois. Il absorbe les décalages, enveloppe les fonctions, les organisant d’un seul côté en bande servante : cuisine, rangements sanitaires, bibliothèque, reprographie, coin maquettes. Rien ne dépasse, tout se cache derrière une même ligne. Corten discret sur rue et dans le patio, feuilles de verre invisibles, ouvertures opaques qui sculptent l’intimité.
Côté jardin, l’extension s’avance. Pierre massive de Hauteville, grands piliers, linteau suspendu : la matière semble tenir l’air. Une large ouverture s’inscrit en feuillure sur la façade en pierre : elle fixe le mouvement. L’ouvrant est plein en acier Corten, au même nu que le verre. La toiture repose sur une dalle de hêtre BauBuche, cerclée d’un ourlet de cuivre aux reflets patinés.
Vers le sous-sol, une trémie s’ouvre… Surprise ! Un miroir reflète les pas au loin et préserve l’intimité tout en accompagnant la lumière. Il dévoile un escalier japonais de hêtre qui nous conduit dans les replis d’un salon blanc, brut et pur à la fois. Deux caves réassemblées et blanchies forment une salle de réunion fraîche. Pas de décor. Juste un lieu précis, doux, silencieux.
Côté rue, une vitrine affirme l’ancrage et l’identité des lieux. Le socle en pierre ancienne sablée retrouve sa rusticité originelle. Une grande plaque de verre collée à même la façade s’encadre d’une bordure en Corten et dissimule une ouverture qui apparaît tel un tableau abstrait. Une ligne de fuite où le regard file, glisse jusqu’au jardin traversant le patio minéral où l’érable du Japon et les fougères composent un paysage suspendu. La baie opaque, en s’ouvrant, crée une nouvelle respiration.
Au fond du jardin, entre les murs de lierre, un Albizia déploie ses branches fines au-dessus d’une terrasse aux teintes fuchsia.